Local: Curitiba, PR
Status: Obra concluída
Projeto: 2018
Obra: 2018
Fotos: Eduardo Macarios
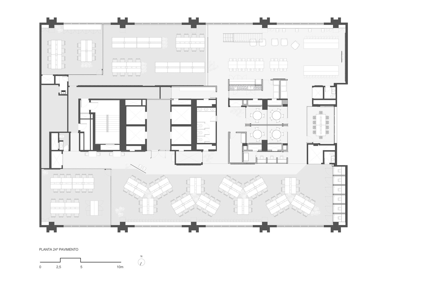
A Olist é uma empresa de tecnologia, focada em Market place, sua sede em Curitiba se localiza na região central, no edifício Itália. A empresa buscava um ambiente de trabalho despojado e conectado, que refletisse em sua arquitetura seus princípios de trabalho.
Status: Obra concluída
Projeto: 2018
Obra: 2018
Fotos: Eduardo Macarios
A Olist é uma empresa de tecnologia, focada em Market place, sua sede em Curitiba se localiza na região central, no edifício Itália. A empresa buscava um ambiente de trabalho despojado e conectado, que refletisse em sua arquitetura seus princípios de trabalho.
O projeto tem como base um escritório no conceito open-space, com integração entre os diferentes departamentos e transparência nos ambientes. Para isso, foram demolidas as compartimentações e retirado o forro, deixando as instalações expostas.
Devido ao baixo pé direito, a laje e os dutos de ventilação foram pintados de preto para que se perca a noção de altura a iluminação é disposta de forma ritmada, para criar perspectiva.
Nas estações de trabalho as mesas são organizadas em forma de Y para quebrando a repetitividade que um layout tradicional teria.
As questões de acústicas foram solucionadas com o revestimento em placas de espuma acústica anti-chamas. O antigo piso de carpete foi retirado e substituído por pintura epóxi, responsável por delimitar por cores as diferentes zonas de trabalho.
O programa conta com salas de call para a equipe de vendas, salas de reunião vedadas com divisórias de vidro, áreas de descompressão com mobiliário projetado pelo escritório e amplas estações de trabalho com as mesas em Y e vasos de planta entre si. Todos os detalhes foram pensados para deixar o ambiente de trabalho leve e agradável para os funcionários da empresa
(Descritivo por Arquea Arquitetos)
Location: Curitiba, PR
Status: Completed
Design: 2018
Construction: 2018
Photography: Eduardo Macarios
Status: Completed
Design: 2018
Construction: 2018
Photography: Eduardo Macarios
Olist is a technology company focused on marketplace solutions. Its headquarters in Curitiba are located in the central area of the city, in the Itália building. The company sought a relaxed and connected work environment, one that would reflect its work principles through its architecture.
The project is based on the concept of an open-plan office, promoting integration among different departments and transparency throughout the spaces. To achieve this, existing partitions were demolished and the ceiling panels removed, leaving the installations exposed.
Because of the low ceiling height, the slab and ventilation ducts were painted black to diminish the perception of height, while lighting was arranged rhythmically to create perspective.
In the workstations, desks were organized in a Y-shape to break the repetitiveness of a traditional layout.
Acoustic issues were solved with fire-retardant acoustic foam panels. The old carpet flooring was removed and replaced with epoxy paint, which also served to define the different work zones through color.
The program includes call rooms for the sales team, meeting rooms enclosed with glass partitions, breakout areas with furniture designed by the office, and large workstations with Y-shaped desks separated by planters. Every detail was carefully designed to make the work environment lighter and more pleasant for the company’s employees.
(Description by Arquea Arquitetos)








